受付時間:平日9時~17時
売却マイページ
譲渡No.6291

千代田区の韓国料理の居抜き売却物件の案件情報 秋葉原駅徒歩2分!美内装韓国料理居抜き

案件概要

最寄り駅

秋葉原 (JR山手線)
徒歩2

現賃料 / 坪単価

- / 32,927

面積 坪(㎡)

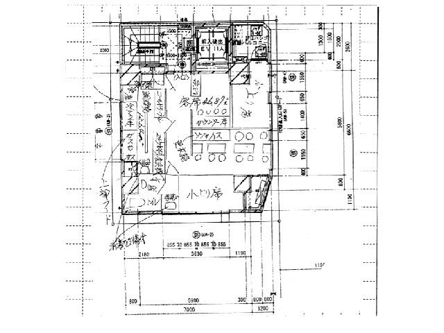
18.04坪59.65m2

希望譲渡額

378万円

前業態

韓国料理

募集終了しました

案件詳細情報

所在地

東京23区 千代田区

最寄り駅

秋葉原 (JR山手線) 徒歩2分

秋葉原 (JR京浜東北・根岸線) 徒歩2分

現賃料 / 坪単価

- / 32,927円

階数 / 建物

地上2階 /

面積 坪(㎡)

18.04坪59.65m2

構造

鉄筋コンクリート造

保証金・敷金

-

契約期間

3年

礼金

-

希望譲渡額

378万円

共益費 / 管理費

-

償却

-

更新料

-

情報公開日(更新日)

2016-11-01

現テナントの基本情報

業態

韓国料理

営業年数

-

営業時間

-

席数

-

コメント

-

この案件の取り扱い会社

募集終了しました

別の案件を探す
相談0円 居抜きで売却するなら、早めのご相談がおすすめです! 詳しく見る