受付時間:平日9時~17時
売却マイページ
譲渡No.7766

千代田区のとんかつ屋の居抜き売却物件の案件情報 外堀通りと出世不動通りの交差点角地。視認性の良いとんかつ屋居抜きが出ました。

案件概要

最寄り駅

神田 (JR山手線)
徒歩5

現賃料 / 坪単価

- / 23,776

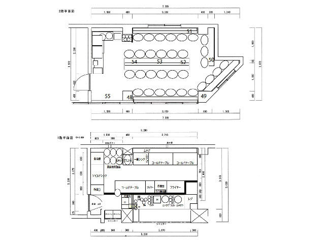
面積 坪(㎡)

11.81坪39.04m2

希望譲渡額

162万円

前業態

とんかつ屋

募集終了しました

案件詳細情報

所在地

東京23区 千代田区

最寄り駅

神田 (JR山手線) 徒歩5分

神田 (JR中央線) 徒歩5分

現賃料 / 坪単価

- / 23,776円

階数 / 建物

地上1-地上2階 /

面積 坪(㎡)

11.81坪39.04m2

構造

鉄筋コンクリート造

保証金・敷金

-

契約期間

定借5年

礼金

-

希望譲渡額

162万円

共益費 / 管理費

-

償却

-

更新料

-

情報公開日(更新日)

2019-04-26

現テナントの基本情報

業態

とんかつ屋

営業年数

-

営業時間

-

席数

-

コメント

-

この案件の取り扱い会社

募集終了しました

別の案件を探す
相談0円 居抜きで売却するなら、早めのご相談がおすすめです! 詳しく見る