受付時間:平日9時~17時
売却マイページ
譲渡No.7718

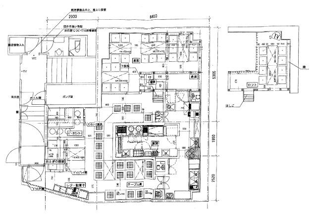
千代田区の居酒屋の居抜き売却物件の案件情報 水道橋駅徒歩1分。駅前居酒屋居抜き物件です!

案件概要

最寄り駅

水道橋 (JR中央線)
徒歩1

現賃料 / 坪単価

- / 15,399

面積 坪(㎡)

25.95坪85.8m2

希望譲渡額

216万円

前業態

居酒屋

募集終了しました

案件詳細情報

所在地

東京23区 千代田区

最寄り駅

水道橋 (JR中央線) 徒歩1分

水道橋 (都営三田線) 徒歩3分

現賃料 / 坪単価

- / 15,399円

階数 / 建物

地下1階 /

面積 坪(㎡)

25.95坪85.8m2

構造

鉄筋鉄骨コンクリート造

保証金・敷金

-

契約期間

3年

礼金

-

希望譲渡額

216万円

共益費 / 管理費

-

償却

-

更新料

-

情報公開日(更新日)

2019-03-18

現テナントの基本情報

業態

居酒屋

営業年数

-

営業時間

-

席数

-

コメント

-

この案件の取り扱い会社

募集終了しました

別の案件を探す
相談0円 居抜きで売却するなら、早めのご相談がおすすめです! 詳しく見る