受付時間:平日9時~17時
売却マイページ
譲渡No.7330

千代田区のラーメンの居抜き売却物件の案件情報 小川町駅徒歩3分。靖国通り沿い、1階路面店舗!

案件概要

最寄り駅

小川町 (都営新宿線)
徒歩3

現賃料 / 坪単価

- / 47,329

面積 坪(㎡)

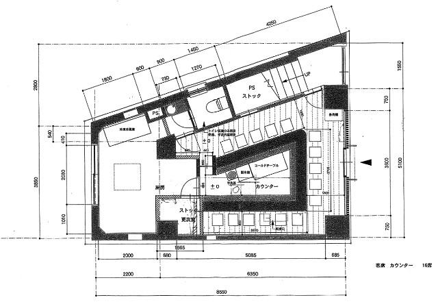
11.98坪39.6m2

希望譲渡額

216万円

前業態

ラーメン

募集終了しました

案件詳細情報

所在地

東京23区 千代田区

最寄り駅

小川町 (都営新宿線) 徒歩3分

新御茶ノ水 (東京メトロ千代田線) 徒歩3分

現賃料 / 坪単価

- / 47,329円

階数 / 建物

地上1階 /

面積 坪(㎡)

11.98坪39.6m2

構造

鉄筋コンクリート造

保証金・敷金

-

契約期間

3年

礼金

-

希望譲渡額

216万円

共益費 / 管理費

-

償却

-

更新料

-

情報公開日(更新日)

2018-09-20

現テナントの基本情報

業態

ラーメン

営業年数

-

営業時間

-

席数

-

コメント

-

この案件の取り扱い会社

募集終了しました