受付時間:平日9時~17時
売却マイページ
譲渡No.7119

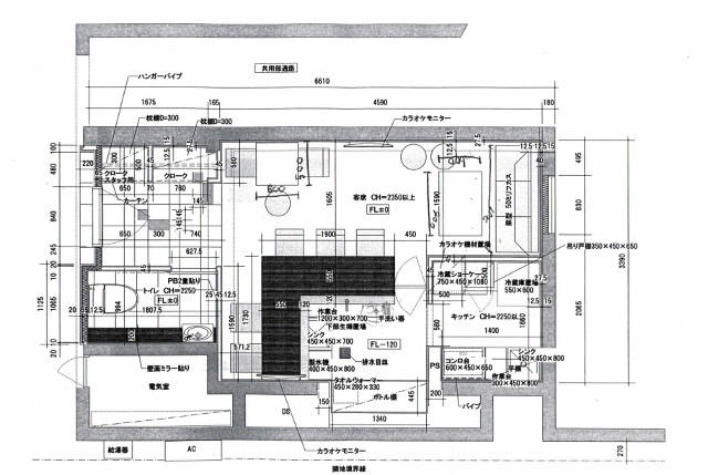
板橋区の居酒屋の居抜き売却物件の案件情報 遊座大山商店街につながる導線上の1階路面、居酒屋居抜き物件

案件概要

最寄り駅

大山 (東武東上線)
徒歩2

現賃料 / 坪単価

- / 24,236

面積 坪(㎡)

7.13坪23.58m2

希望譲渡額

54万円

前業態

居酒屋

募集終了しました

案件詳細情報

所在地

東京23区 板橋区

最寄り駅

大山 (東武東上線) 徒歩2分

現賃料 / 坪単価

- / 24,236円

階数 / 建物

地上1階 /

面積 坪(㎡)

7.13坪23.58m2

構造

鉄筋コンクリート造

保証金・敷金

-

契約期間

3年

礼金

-

希望譲渡額

54万円

共益費 / 管理費

-

償却

-

更新料

-

情報公開日(更新日)

2018-07-17

現テナントの基本情報

業態

居酒屋

営業年数

-

営業時間

-

席数

-

コメント

-

この案件の取り扱い会社

募集終了しました

別の案件を探す
相談0円 居抜きで売却するなら、早めのご相談がおすすめです! 詳しく見る