受付時間:平日9時~17時
売却マイページ
譲渡No.5515

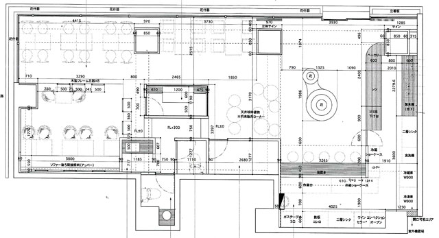
千代田区のカフェの居抜き売却物件の案件情報 人気の水道橋エリア!角地で間口は広く視認性良好

案件概要

最寄り駅

水道橋 (JR中央線)
徒歩5

現賃料 / 坪単価

- / 26,102

面積 坪(㎡)

32.5坪107.4m2

希望譲渡額

54万円

前業態

カフェ

募集終了しました

案件詳細情報

所在地

東京23区 千代田区

最寄り駅

水道橋 (JR中央線) 徒歩5分

水道橋 (JR総武線) 徒歩5分

現賃料 / 坪単価

- / 26,102円

階数 / 建物

地上1階 /

面積 坪(㎡)

32.5坪107.4m2

構造

SRC造

保証金・敷金

-

契約期間

3年

礼金

-

希望譲渡額

54万円

共益費 / 管理費

-

償却

-

更新料

-

情報公開日(更新日)

2015-05-29

現テナントの基本情報

業態

カフェ

営業年数

-

営業時間

-

席数

-

コメント

-

この案件の取り扱い会社

募集終了しました

別の案件を探す
相談0円 居抜きで売却するなら、早めのご相談がおすすめです! 詳しく見る