受付時間:平日9時~17時
売却マイページ
譲渡No.4319

千代田区の中華料理の居抜き売却物件の案件情報 水道橋駅徒歩2分。飲食店が集まるエリアの角地物件です!

案件概要

最寄り駅

水道橋 (JR中央線)
徒歩2

現賃料 / 坪単価

- / 37,000

面積 坪(㎡)

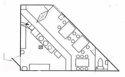
9.5坪31.0m2

希望譲渡額

105万円

前業態

中華料理

募集終了しました

案件詳細情報

所在地

東京23区 千代田区

最寄り駅

水道橋 (JR中央線) 徒歩2分

現賃料 / 坪単価

- / 37,000円

階数 / 建物

地上1階 /

面積 坪(㎡)

9.5坪31.0m2

構造

木造

保証金・敷金

-

契約期間

定借3年(相談可)

礼金

-

希望譲渡額

105万円

共益費 / 管理費

-

償却

-

更新料

-

情報公開日(更新日)

2013-08-30

現テナントの基本情報

業態

中華料理

営業年数

-

営業時間

-

席数

-

コメント

-

この案件の取り扱い会社

募集終了しました

別の案件を探す
相談0円 居抜きで売却するなら、早めのご相談がおすすめです! 詳しく見る