受付時間:平日9時~17時
売却マイページ
譲渡No.4256

千代田区のラーメンの居抜き売却物件の案件情報 人気のオフィス街!ラーメン店の譲渡情報です。

案件概要

最寄り駅

淡路町 (東京メトロ丸ノ内線)
徒歩3

現賃料 / 坪単価

- / 18,900

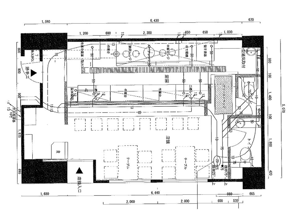
面積 坪(㎡)

14坪46.0m2

希望譲渡額

350万円

前業態

ラーメン

募集終了しました

案件詳細情報

所在地

東京23区 千代田区

最寄り駅

淡路町 (東京メトロ丸ノ内線) 徒歩3分

新御茶ノ水 (東京メトロ千代田線) 徒歩5分

現賃料 / 坪単価

- / 18,900円

階数 / 建物

地上1階 / 地上6地下1階建

面積 坪(㎡)

14坪46.0m2

構造

RC造

保証金・敷金

-

契約期間

2年

礼金

-

希望譲渡額

350万円

共益費 / 管理費

-

償却

-

更新料

-

情報公開日(更新日)

2013-07-04

現テナントの基本情報

業態

ラーメン

営業年数

-

営業時間

-

席数

-

コメント

-

この案件の取り扱い会社

募集終了しました