受付時間:平日9時~17時
売却マイページ
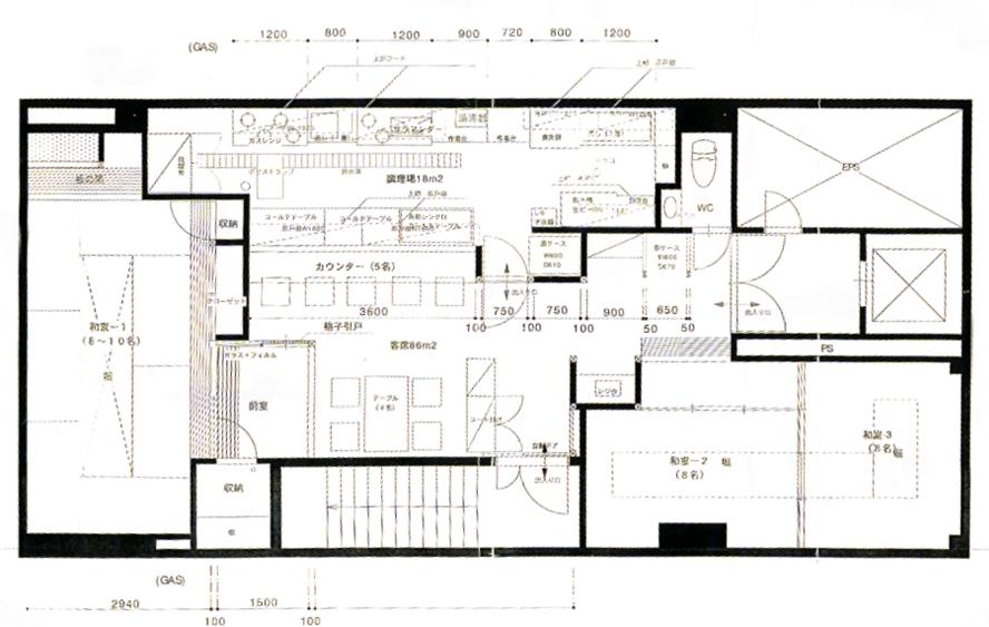
譲渡No.4184

千代田区の和食の居抜き売却物件の案件情報 2駅アクセス良好、店内美装の和食店譲渡情報です!

案件概要

最寄り駅

麹町 (東京メトロ有楽町線)
徒歩5

現賃料 / 坪単価

- / 18,049

面積 坪(㎡)

34.24坪113.19m2

希望譲渡額

300万円

前業態

和食

募集終了しました

案件詳細情報

所在地

東京23区 千代田区

最寄り駅

麹町 (東京メトロ有楽町線) 徒歩5分

半蔵門 (東京メトロ半蔵門線) 徒歩4分

現賃料 / 坪単価

- / 18,049円

階数 / 建物

地下1階 / 地上8地下1階建

面積 坪(㎡)

34.24坪113.19m2

構造

鉄骨鉄筋コンクリート造

保証金・敷金

-

契約期間

2年

礼金

-

希望譲渡額

300万円

共益費 / 管理費

-

償却

-

更新料

-

情報公開日(更新日)

2013-05-23

売却テナントの基本情報

業態

和食

営業年数

-

営業時間

-

席数

-

コメント

-

この案件の取り扱い会社

募集終了しました

別の案件を探す
相談0円 居抜きで売却するなら、早めのご相談がおすすめです! 詳しく見る