受付時間:平日9時~17時
売却マイページ
譲渡No.3625

千代田区のすし(テイクアウト専門)の居抜き売却物件の案件情報 目白通りから一本入った1階路面!!

案件概要

最寄り駅

飯田橋 (JR総武線)
徒歩3

現賃料 / 坪単価

- / 26,149

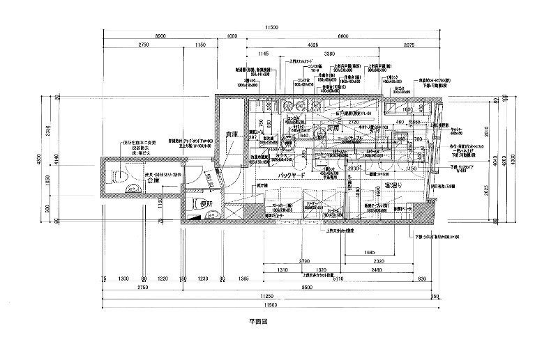
面積 坪(㎡)

10.44坪34.51m2

希望譲渡額

200万円

前業態

すし(テイクアウト専門)

募集終了しました

案件詳細情報

所在地

東京23区 千代田区

最寄り駅

飯田橋 (JR総武線) 徒歩3分

現賃料 / 坪単価

- / 26,149円

階数 / 建物

地上1階 / 地上5階建

面積 坪(㎡)

10.44坪34.51m2

構造

鉄筋コンクリート造

保証金・敷金

-

契約期間

3年

礼金

-

希望譲渡額

200万円

共益費 / 管理費

-

償却

-

更新料

-

情報公開日(更新日)

2012-10-11

現テナントの基本情報

業態

すし(テイクアウト専門)

営業年数

-

営業時間

-

席数

-

コメント

-

この案件の取り扱い会社

募集終了しました

別の案件を探す
相談0円 居抜きで売却するなら、早めのご相談がおすすめです! 詳しく見る