受付時間:平日9時~17時
売却マイページ
譲渡No.2422

千代田区のバーの居抜き売却物件の案件情報 バー居抜き店舗! 駅近くの人通り多数ある好立地!!!

案件概要

最寄り駅

神田 (JR山手線)
徒歩2

現賃料 / 坪単価

- / 34,120

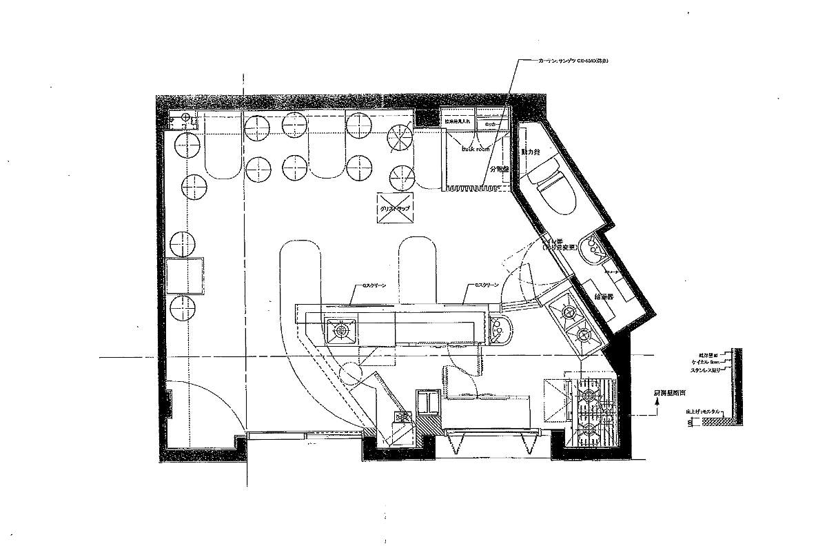
面積 坪(㎡)

8坪26.45m2

希望譲渡額

相談

前業態

バー

募集終了しました

案件詳細情報

所在地

東京23区 千代田区

最寄り駅

神田 (JR山手線) 徒歩2分

神田 (JR中央線) 徒歩2分

現賃料 / 坪単価

- / 34,120円

階数 / 建物

地上1階 / 地上2階建

面積 坪(㎡)

8坪26.45m2

構造

鉄骨造

保証金・敷金

-

契約期間

3年

礼金

-

希望譲渡額

相談

共益費 / 管理費

-

償却

-

更新料

-

情報公開日(更新日)

2011-03-16

現テナントの基本情報

業態

バー

営業年数

-

営業時間

-

席数

-

コメント

-

この案件の取り扱い会社

募集終了しました

別の案件を探す
相談0円 居抜きで売却するなら、早めのご相談がおすすめです! 詳しく見る