受付時間:平日9時~17時
売却マイページ
譲渡No.7884

板橋区のステーキ屋の居抜き売却物件の案件情報 地下鉄成増駅から徒歩1分!1階路面、重飲食可能な居抜き店舗!

案件概要

最寄り駅

地下鉄成増 (東京メトロ有楽町線)
徒歩1

現賃料 / 坪単価

- / 27,832

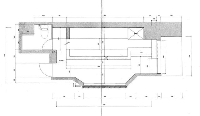
面積 坪(㎡)

6.47坪21.38m2

希望譲渡額

540万円

前業態

ステーキ屋

募集終了しました

案件詳細情報

所在地

東京23区 板橋区

最寄り駅

地下鉄成増 (東京メトロ有楽町線) 徒歩1分

現賃料 / 坪単価

- / 27,832円

階数 / 建物

地上1階 / 地上8階建

面積 坪(㎡)

6.47坪21.38m2

構造

鉄骨造

保証金・敷金

-

契約期間

3年間

礼金

-

希望譲渡額

540万円

共益費 / 管理費

-

償却

-

更新料

-

情報公開日(更新日)

2020-02-27

現テナントの基本情報

業態

ステーキ屋

営業年数

-

営業時間

-

席数

-

コメント

-

この案件の取り扱い会社

募集終了しました

別の案件を探す
相談0円 居抜きで売却するなら、早めのご相談がおすすめです! 詳しく見る