受付時間:平日9時~17時
売却マイページ
譲渡No.3525

中央区の和食居酒屋の居抜き売却物件の案件情報 駅から至近の居抜き案件!地下ですが専用階段有。

案件概要

最寄り駅

八丁堀 (東京メトロ日比谷線)
徒歩1

現賃料 / 坪単価

- / 16,656

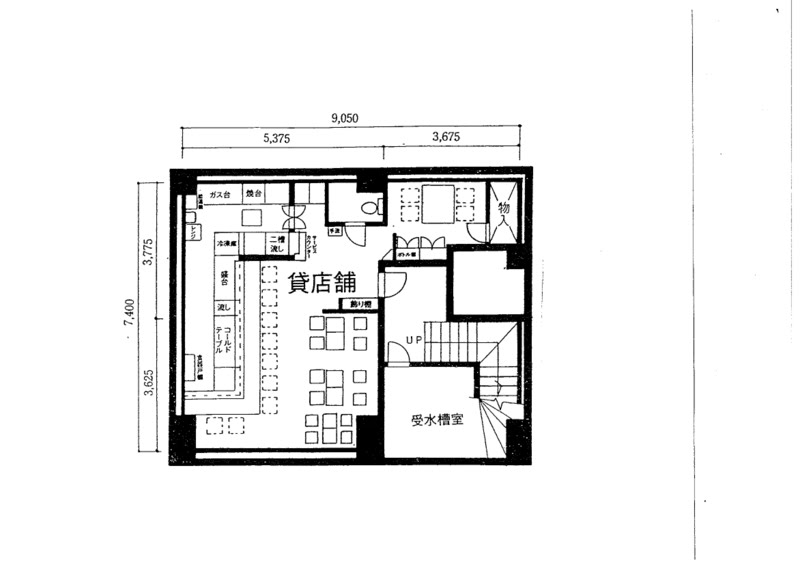
面積 坪(㎡)

15.01坪49.62m2

希望譲渡額

240万円

前業態

和食居酒屋

募集終了しました

案件詳細情報

所在地

東京23区 中央区

最寄り駅

八丁堀 (東京メトロ日比谷線) 徒歩1分

現賃料 / 坪単価

- / 16,656円

階数 / 建物

地下1階 / 地上7地下1階建

面積 坪(㎡)

15.01坪49.62m2

構造

鉄筋コンクリート造

保証金・敷金

-

契約期間

3年

礼金

-

希望譲渡額

240万円

共益費 / 管理費

-

償却

-

更新料

-

情報公開日(更新日)

2012-10-03

現テナントの基本情報

業態

和食居酒屋

営業年数

-

営業時間

-

席数

-

コメント

-

この案件の取り扱い会社

募集終了しました

別の案件を探す
相談0円 居抜きで売却するなら、早めのご相談がおすすめです! 詳しく見る