受付時間:平日9時~17時
売却マイページ
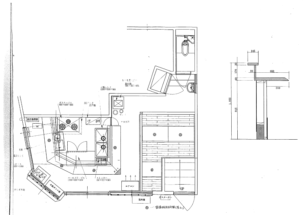
譲渡No.3141

板橋区のホルモンの居抜き売却物件の案件情報 低コストで出店可能!内装美装の譲渡情報です!

案件概要

最寄り駅

ときわ台 (東武東上線)
徒歩1

現賃料 / 坪単価

- / 11,200

面積 坪(㎡)

7.5坪24.8m2

希望譲渡額

180万円

前業態

ホルモン

募集終了しました

案件詳細情報

所在地

東京23区 板橋区

最寄り駅

ときわ台 (東武東上線) 徒歩1分

現賃料 / 坪単価

- / 11,200円

階数 / 建物

地上1階 / 地上2階建

面積 坪(㎡)

7.5坪24.8m2

構造

木造

保証金・敷金

-

契約期間

3年

礼金

-

希望譲渡額

180万円

共益費 / 管理費

-

償却

-

更新料

-

情報公開日(更新日)

2012-02-02

現テナントの基本情報

業態

ホルモン

営業年数

-

営業時間

-

席数

-

コメント

-

この案件の取り扱い会社

募集終了しました

別の案件を探す
相談0円 居抜きで売却するなら、早めのご相談がおすすめです! 詳しく見る