受付時間:平日9時~17時
売却マイページ
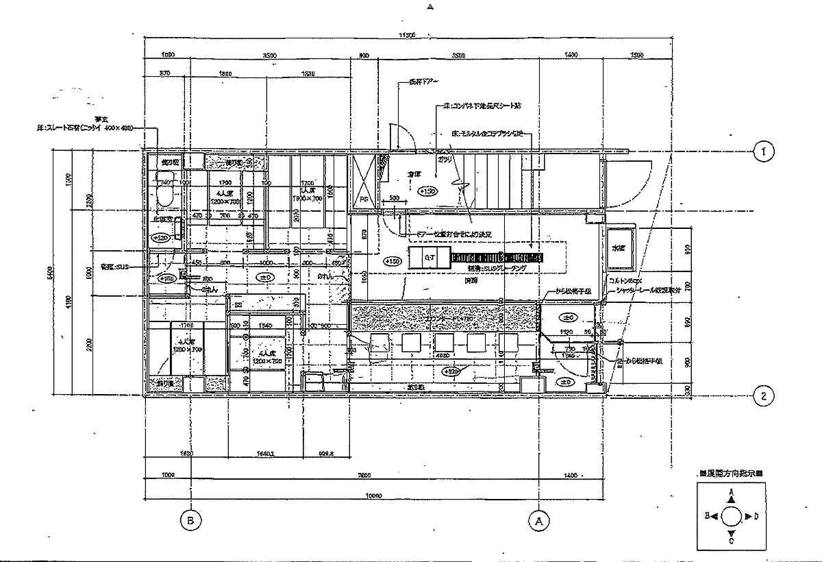
譲渡No.2622

板橋区の和食の居抜き売却物件の案件情報 駅、徒歩2分! 内装、厨房設備充実しています。

案件概要

最寄り駅

中板橋 (東武東上線)
徒歩2

現賃料 / 坪単価

- / 11,068

面積 坪(㎡)

13.6坪44.8m2

希望譲渡額

300万円

前業態

和食

募集終了しました

案件詳細情報

所在地

東京23区 板橋区

最寄り駅

中板橋 (東武東上線) 徒歩2分

現賃料 / 坪単価

- / 11,068円

階数 / 建物

地上1階 / 地上4階建

面積 坪(㎡)

13.6坪44.8m2

構造

鉄骨造

保証金・敷金

-

契約期間

3年

礼金

-

希望譲渡額

300万円

共益費 / 管理費

-

償却

-

更新料

-

情報公開日(更新日)

2011-05-23

現テナントの基本情報

業態

和食

営業年数

-

営業時間

-

席数

-

コメント

-

この案件の取り扱い会社

募集終了しました