受付時間:平日9時~17時
売却マイページ
譲渡No.1927

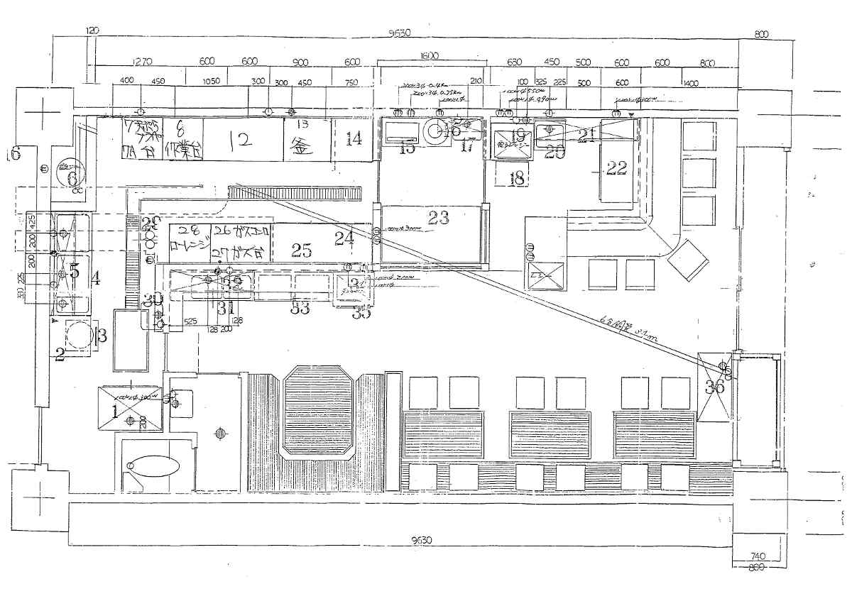
板橋区の讃岐うどんの居抜き売却物件の案件情報 うどん店の居抜き店舗! 厨房内、グリストラップや排気ダクトなどの設備あり。

案件概要

最寄り駅

赤塚 (西武有楽町線)
徒歩8

現賃料 / 坪単価

- / 9,584

面積 坪(㎡)

18.3坪60.48m2

希望譲渡額

40万円

前業態

讃岐うどん

募集終了しました

案件詳細情報

所在地

東京23区 板橋区

最寄り駅

赤塚 (西武有楽町線) 徒歩8分

下赤塚 (東武東上線) 徒歩10分

現賃料 / 坪単価

- / 9,584円

階数 / 建物

地上1階 / 地上5階建

面積 坪(㎡)

18.3坪60.48m2

構造

鉄筋コンクリート造

保証金・敷金

-

契約期間

1年(更新可)

礼金

-

希望譲渡額

40万円

共益費 / 管理費

-

償却

-

更新料

-

情報公開日(更新日)

2010-11-29

売却テナントの基本情報

業態

讃岐うどん

営業年数

-

営業時間

-

席数

-

コメント

-

この案件の取り扱い会社

募集終了しました

別の案件を探す
相談0円 居抜きで売却するなら、早めのご相談がおすすめです! 詳しく見る