受付時間:平日9時~17時
売却マイページ
譲渡No.9135

杉並区のテイクアウトの居抜き売却物件の案件情報 荻窪駅北口から徒歩1分!商店街内、テイクアウト居抜き!

案件概要

最寄り駅

荻窪 (JR中央線)
徒歩2

現賃料 / 坪単価

- / 27,652

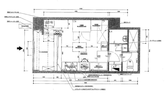
面積 坪(㎡)

7.956坪26.3m2

希望譲渡額

100万円

前業態

テイクアウト

募集終了しました

案件詳細情報

所在地

東京23区 杉並区

最寄り駅

荻窪 (JR中央線) 徒歩2分

荻窪 (東京メトロ丸ノ内線) 徒歩2分

現賃料 / 坪単価

- / 27,652円

階数 / 建物

地上1階 / 地上7階建

面積 坪(㎡)

7.956坪26.3m2

構造

鉄筋コンクリート造

保証金・敷金

-

契約期間

普通3年

礼金

-

希望譲渡額

100万円

共益費 / 管理費

-

償却

-

更新料

-

情報公開日(更新日)

2022-05-02

現テナントの基本情報

業態

テイクアウト

営業年数

-

営業時間

-

席数

-

コメント

-

この案件の取り扱い会社

募集終了しました

別の案件を探す
相談0円 居抜きで売却するなら、早めのご相談がおすすめです! 詳しく見る