受付時間:平日9時~17時
売却マイページ
譲渡No.8627

中央区の焼肉の居抜き売却物件の案件情報 複数駅近、1階路面点!焼肉居抜き

案件概要

最寄り駅

京橋 (東京メトロ銀座線)
徒歩2

現賃料 / 坪単価

- / 29,700

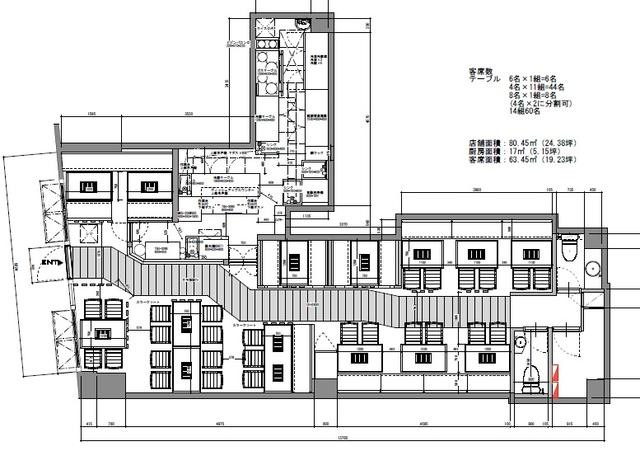
面積 坪(㎡)

27坪89.256m2

希望譲渡額

200万円

前業態

焼肉

募集終了しました

案件詳細情報

所在地

東京23区 中央区

最寄り駅

京橋 (東京メトロ銀座線) 徒歩2分

銀座一丁目 (東京メトロ有楽町線) 徒歩3分

現賃料 / 坪単価

- / 29,700円

階数 / 建物

地上1階 / 地上5地下1階建

面積 坪(㎡)

27坪89.256m2

構造

鉄筋コンクリート造

保証金・敷金

-

契約期間

定借10年(再契約可)

礼金

-

希望譲渡額

200万円

共益費 / 管理費

-

償却

-

更新料

-

情報公開日(更新日)

2020-09-28

現テナントの基本情報

業態

焼肉

営業年数

-

営業時間

-

席数

-

コメント

-

この案件の取り扱い会社

募集終了しました

別の案件を探す
相談0円 居抜きで売却するなら、早めのご相談がおすすめです! 詳しく見る