受付時間:平日9時~17時
売却マイページ
譲渡No.7474

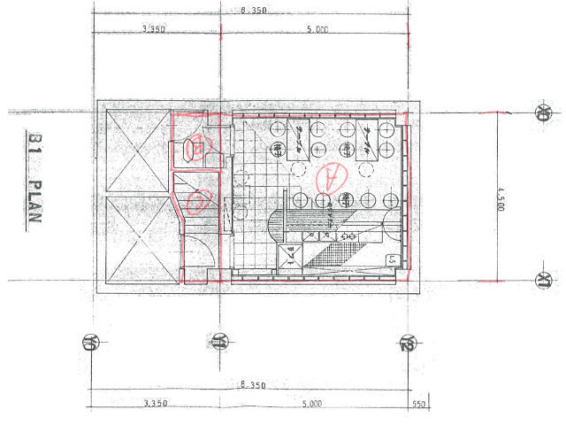
中央区のイタリアンバルの居抜き売却物件の案件情報 JR山手線神田駅南口から徒歩3分、地下1階のイタリアンバル居抜き物件。

案件概要

最寄り駅

神田 (JR山手線)
徒歩3

現賃料 / 坪単価

- / 23,008

面積 坪(㎡)

7.98坪26.4m2

希望譲渡額

162万円

前業態

イタリアンバル

募集終了しました

案件詳細情報

所在地

東京23区 中央区

最寄り駅

神田 (JR山手線) 徒歩3分

新日本橋 (JR総武本線) 徒歩3分

現賃料 / 坪単価

- / 23,008円

階数 / 建物

地下1階 /

面積 坪(㎡)

7.98坪26.4m2

構造

鉄筋鉄骨コンクリート造

保証金・敷金

-

契約期間

3年

礼金

-

希望譲渡額

162万円

共益費 / 管理費

-

償却

-

更新料

-

情報公開日(更新日)

2018-12-12

売却テナントの基本情報

業態

イタリアンバル

営業年数

-

営業時間

-

席数

-

コメント

-

この案件の取り扱い会社

募集終了しました

別の案件を探す
相談0円 居抜きで売却するなら、早めのご相談がおすすめです! 詳しく見る