受付時間:平日9時~17時
売却マイページ
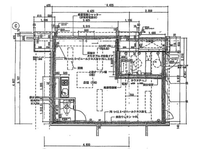
譲渡No.7220

中央区の居酒屋の居抜き売却物件の案件情報 水天宮前駅A7出口より徒歩1分。角地路面の居酒屋居抜き店舗。

案件概要

最寄り駅

水天宮前 (東京メトロ半蔵門線)
徒歩1

現賃料 / 坪単価

- / 41,384

面積 坪(㎡)

8.09坪26.76m2

希望譲渡額

162万円

前業態

居酒屋

募集終了しました

案件詳細情報

所在地

東京23区 中央区

最寄り駅

水天宮前 (東京メトロ半蔵門線) 徒歩1分

人形町 (東京メトロ日比谷線) 徒歩2分

現賃料 / 坪単価

- / 41,384円

階数 / 建物

地上1階 /

面積 坪(㎡)

8.09坪26.76m2

構造

鉄筋コンクリート造

保証金・敷金

-

契約期間

3年

礼金

-

希望譲渡額

162万円

共益費 / 管理費

-

償却

-

更新料

-

情報公開日(更新日)

2018-10-08

売却テナントの基本情報

業態

居酒屋

営業年数

-

営業時間

-

席数

-

コメント

-

この案件の取り扱い会社

募集終了しました

別の案件を探す
相談0円 居抜きで売却するなら、早めのご相談がおすすめです! 詳しく見る