受付時間:平日9時~17時
売却マイページ
譲渡No.7152

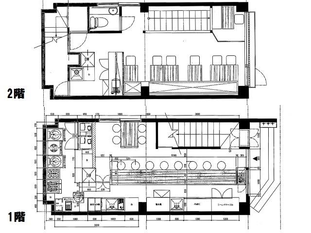
中央区の中華料理の居抜き売却物件の案件情報 東日本橋駅徒歩1分!角ビルのため視認性良好

案件概要

最寄り駅

東日本橋 (都営浅草線)
徒歩1

現賃料 / 坪単価

- / 22,828

面積 坪(㎡)

21.29坪70.4m2

希望譲渡額

162万円

前業態

中華料理

募集終了しました

案件詳細情報

所在地

東京23区 中央区

最寄り駅

東日本橋 (都営浅草線) 徒歩1分

馬喰横山 (都営新宿線) 徒歩3分

現賃料 / 坪単価

- / 22,828円

階数 / 建物

地上1-地上2階 /

面積 坪(㎡)

21.29坪70.4m2

構造

鉄筋コンクリート造

保証金・敷金

-

契約期間

3年

礼金

-

希望譲渡額

162万円

共益費 / 管理費

-

償却

-

更新料

-

情報公開日(更新日)

2018-06-12

現テナントの基本情報

業態

中華料理

営業年数

-

営業時間

-

席数

-

コメント

-

この案件の取り扱い会社

募集終了しました

別の案件を探す
相談0円 居抜きで売却するなら、早めのご相談がおすすめです! 詳しく見る