受付時間:平日9時~17時
売却マイページ
譲渡No.7111

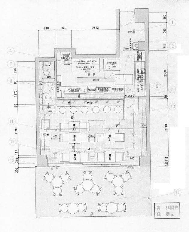
横浜市都筑区のイタリアンの居抜き売却物件の案件情報 センター北駅すぐ、1階路面イタリアンの居抜き店舗です。

案件概要

最寄り駅

センター北 (横浜市営地下鉄)
徒歩3

現賃料 / 坪単価

- / 10,882

面積 坪(㎡)

17坪56.198m2

希望譲渡額

486万円

前業態

イタリアン

募集終了しました

案件詳細情報

所在地

神奈川県 横浜市都筑区

最寄り駅

センター北 (横浜市営地下鉄) 徒歩3分

センター北 (横浜市営地下鉄グリーンライン) 徒歩3分

現賃料 / 坪単価

- / 10,882円

階数 / 建物

地上1階 /

面積 坪(㎡)

17坪56.198m2

構造

保証金・敷金

-

契約期間

3年

礼金

-

希望譲渡額

486万円

共益費 / 管理費

-

償却

-

更新料

-

情報公開日(更新日)

2018-05-15

現テナントの基本情報

業態

イタリアン

営業年数

-

営業時間

-

席数

-

コメント

-

この案件の取り扱い会社

募集終了しました

別の案件を探す
相談0円 居抜きで売却するなら、早めのご相談がおすすめです! 詳しく見る