受付時間:平日9時~17時
売却マイページ
譲渡No.6953

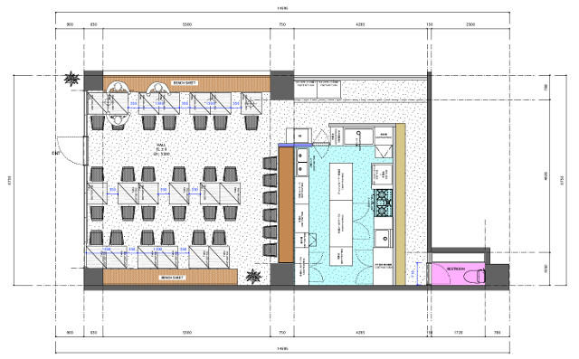
中央区のフレンチビストロの居抜き売却物件の案件情報 浜町駅徒歩1分。角地の路面居抜き店舗

案件概要

最寄り駅

浜町 (都営新宿線)
徒歩1

現賃料 / 坪単価

- / 24,828

面積 坪(㎡)

24.36坪80.53m2

希望譲渡額

378万円

前業態

フレンチビストロ

募集終了しました

案件詳細情報

所在地

東京23区 中央区

最寄り駅

浜町 (都営新宿線) 徒歩1分

人形町 (東京メトロ日比谷線) 徒歩7分

現賃料 / 坪単価

- / 24,828円

階数 / 建物

地上1階 /

面積 坪(㎡)

24.36坪80.53m2

構造

鉄筋コンクリート造

保証金・敷金

-

契約期間

2年

礼金

-

希望譲渡額

378万円

共益費 / 管理費

-

償却

-

更新料

-

情報公開日(更新日)

2018-02-09

売却テナントの基本情報

業態

フレンチビストロ

営業年数

-

営業時間

-

席数

-

コメント

-

この案件の取り扱い会社

募集終了しました

別の案件を探す
相談0円 居抜きで売却するなら、早めのご相談がおすすめです! 詳しく見る