受付時間:平日9時~17時
売却マイページ
譲渡No.6582

中央区の和食料理の居抜き売却物件の案件情報 複数駅利用可能!清洲橋通り沿いの割烹料理屋居抜き物件

案件概要

最寄り駅

浜町 (都営新宿線)
徒歩4

現賃料 / 坪単価

- / 22,170

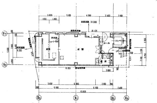
面積 坪(㎡)

20.46坪67.66m2

希望譲渡額

相談

前業態

和食料理

募集終了しました

案件詳細情報

所在地

東京23区 中央区

最寄り駅

浜町 (都営新宿線) 徒歩4分

人形町 (東京メトロ日比谷線) 徒歩6分

現賃料 / 坪単価

- / 22,170円

階数 / 建物

地上1階 /

面積 坪(㎡)

20.46坪67.66m2

構造

鉄骨造

保証金・敷金

-

契約期間

3年

礼金

-

希望譲渡額

相談

共益費 / 管理費

-

償却

-

更新料

-

情報公開日(更新日)

2017-05-25

売却テナントの基本情報

業態

和食料理

営業年数

-

営業時間

-

席数

-

コメント

-

この案件の取り扱い会社

募集終了しました

別の案件を探す
相談0円 居抜きで売却するなら、早めのご相談がおすすめです! 詳しく見る