受付時間:平日9時~17時
売却マイページ
譲渡No.5813

中央区の和食の居抜き売却物件の案件情報 築地市場駅至近の好立地!美内装割烹居抜き店舗!

案件概要

最寄り駅

築地市場 (都営大江戸線)
徒歩2

現賃料 / 坪単価

- / 26,365

面積 坪(㎡)

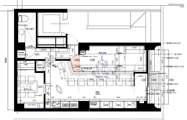
13.6坪44.95m2

希望譲渡額

270万円

前業態

和食

募集終了しました

案件詳細情報

所在地

東京23区 中央区

最寄り駅

築地市場 (都営大江戸線) 徒歩2分

新橋 (JR山手線) 徒歩5分

現賃料 / 坪単価

- / 26,365円

階数 / 建物

地上1階 /

面積 坪(㎡)

13.6坪44.95m2

構造

鉄筋コンクリート造

保証金・敷金

-

契約期間

定借3年

礼金

-

希望譲渡額

270万円

共益費 / 管理費

-

償却

-

更新料

-

情報公開日(更新日)

2015-11-20

現テナントの基本情報

業態

和食

営業年数

-

営業時間

-

席数

-

コメント

-

この案件の取り扱い会社

募集終了しました

別の案件を探す
相談0円 居抜きで売却するなら、早めのご相談がおすすめです! 詳しく見る