受付時間:平日9時~17時
売却マイページ
譲渡No.5725

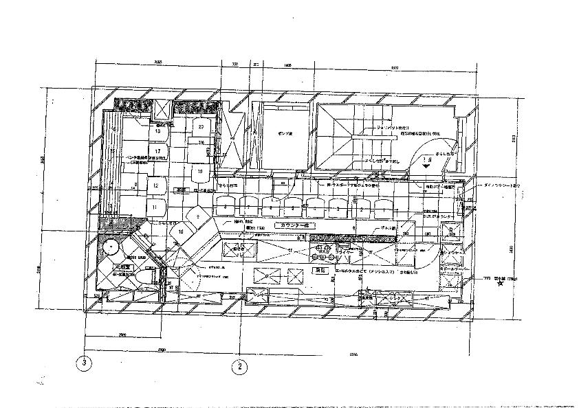
中央区の和食の居抜き売却物件の案件情報 銀座駅、新橋駅から徒歩圏内!外堀通り沿い和食店!

案件概要

最寄り駅

銀座 (東京メトロ銀座線)
徒歩6

現賃料 / 坪単価

- / 27,002

面積 坪(㎡)

14.27坪47.17m2

希望譲渡額

200万円

前業態

和食

募集終了しました

案件詳細情報

所在地

東京23区 中央区

最寄り駅

銀座 (東京メトロ銀座線) 徒歩6分

新橋 (JR山手線) 徒歩4分

現賃料 / 坪単価

- / 27,002円

階数 / 建物

地下1階 / 地上9地下1階建

面積 坪(㎡)

14.27坪47.17m2

構造

鉄骨鉄筋コンクリート造

保証金・敷金

-

契約期間

2年

礼金

-

希望譲渡額

200万円

共益費 / 管理費

-

償却

-

更新料

-

情報公開日(更新日)

2015-09-29

現テナントの基本情報

業態

和食

営業年数

-

営業時間

-

席数

-

コメント

-

この案件の取り扱い会社

募集終了しました

別の案件を探す
相談0円 居抜きで売却するなら、早めのご相談がおすすめです! 詳しく見る