受付時間:平日9時~17時
売却マイページ
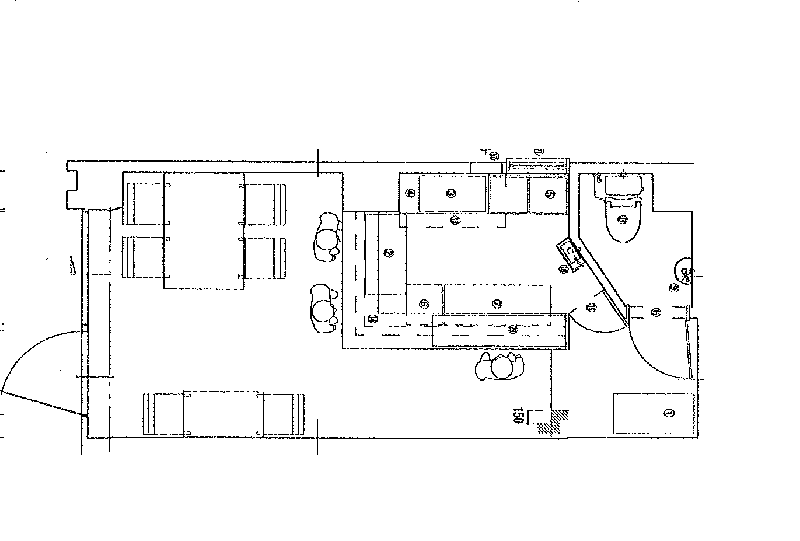
譲渡No.3384

杉並区のカフェの居抜き売却物件の案件情報 駅近、内装美装!井荻駅6.25坪、カフェの譲渡情報です。

案件概要

最寄り駅

井荻 (西武新宿線)
徒歩1

現賃料 / 坪単価

- / 9,440

面積 坪(㎡)

6.25坪20.66m2

希望譲渡額

280万円

前業態

カフェ

募集終了しました

案件詳細情報

所在地

東京23区 杉並区

最寄り駅

井荻 (西武新宿線) 徒歩1分

現賃料 / 坪単価

- / 9,440円

階数 / 建物

地上1階 / 地上8階建

面積 坪(㎡)

6.25坪20.66m2

構造

鉄筋コンクリート造

保証金・敷金

-

契約期間

2年

礼金

-

希望譲渡額

280万円

共益費 / 管理費

-

償却

-

更新料

-

情報公開日(更新日)

2012-05-28

現テナントの基本情報

業態

カフェ

営業年数

-

営業時間

-

席数

-

コメント

-

この案件の取り扱い会社

募集終了しました

別の案件を探す
相談0円 居抜きで売却するなら、早めのご相談がおすすめです! 詳しく見る