受付時間:平日9時~17時
売却マイページ
譲渡No.11092

大阪狭山市のカフェの居抜き売却物件の案件情報 大阪狭山ロードサイドのカフェ居抜き物件!

案件概要

最寄り駅

大阪狭山市 (南海高野線)
徒歩15

現賃料 / 坪単価

40万円 / 5,004

面積 坪(㎡)

79.94坪264.27m2

希望譲渡額

相談

前業態

カフェ

この案件へ問い合わせる

問い合わせには飲食店ドットコム会員登録が必要です。
無料会員登録ログイン

案件詳細情報

所在地

大阪府 大阪狭山市

最寄り駅

大阪狭山市 (南海高野線) 徒歩15分

現賃料 / 坪単価

40万円 / 5,004円

階数 / 建物

地上1階 / 地上2階建

面積 坪(㎡)

79.94坪264.27m2

構造

鉄骨造

保証金・敷金

300万円

契約期間

10年

礼金

希望譲渡額

相談

共益費 / 管理費

償却

100万円

更新料

情報公開日(更新日)

2026-04-13

売却テナントの基本情報

業態

カフェ

営業年数

3.1年

営業時間

09:00 - 18:00

席数

60席

コメント

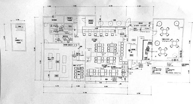
大阪狭山ロードサイドのカフェ居抜き物件!
・府道202号線沿い。駐車場20台あり。
・改装オープンから約3年で、店内きれいな状態です。
・ゆったりめの約60席。テラス席もございます。
・大型焙煎機、ショーケース、厨房機器など譲渡
・プレハブ冷蔵庫あり。ガスはプロパンです。
・10年定期借家契約
・現契約条件につき、新契約では変更の可能性あり
・家賃保証、店舗総合保険の加入が必須です。
・企画料1ヵ月分。造作譲渡手数料10%
--------------------------------------------------------------------------------
※賃貸条件については現状のものとなりますので、変更の可能性があります。
※取扱会社規定の賃貸借契約手数料、譲渡契約手数料が発生します。
※現在営業中の店舗もありますので、店舗への連絡、従業員及び、関係者への物件に関するお問い合せ、
写真撮影、店内での本物件に関する話題等、営業に支障をきたす行為は固く禁止致します。

この案件の取り扱い会社

株式会社フードビジネスロード

東京都大田区西蒲田7-65-9

担当者:渡邊 元

この案件へ問い合わせる

問い合わせには飲食店ドットコム会員登録が必要です。
無料会員登録ログイン

あなたにおすすめの案件

別の案件を探す
相談0円 居抜きで売却するなら、早めのご相談がおすすめです! 詳しく見る