受付時間:平日9時~17時
売却マイページ
譲渡No.3361

中央区のスペインバルの居抜き売却物件の案件情報 人気エリアの好立地譲渡情報です!お問い合わせはお早めにお願いします!

案件概要

最寄り駅

人形町 (東京メトロ日比谷線)
徒歩1

現賃料 / 坪単価

- / 15,876

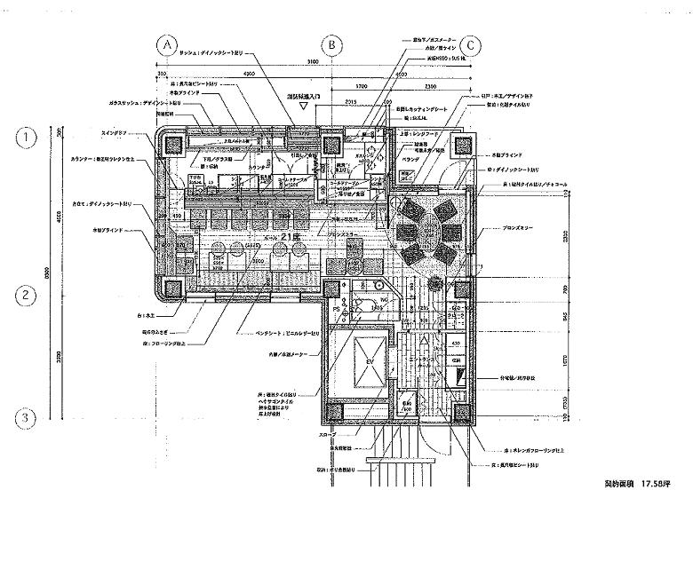
面積 坪(㎡)

17.58坪58.12m2

希望譲渡額

300万円

前業態

スペインバル

募集終了しました

案件詳細情報

所在地

東京23区 中央区

最寄り駅

人形町 (東京メトロ日比谷線) 徒歩1分

現賃料 / 坪単価

- / 15,876円

階数 / 建物

地上2階 / 地上8地下1階建

面積 坪(㎡)

17.58坪58.12m2

構造

SRC造

保証金・敷金

-

契約期間

2年

礼金

-

希望譲渡額

300万円

共益費 / 管理費

-

償却

-

更新料

-

情報公開日(更新日)

2012-05-16

現テナントの基本情報

業態

スペインバル

営業年数

-

営業時間

-

席数

-

コメント

-

この案件の取り扱い会社

募集終了しました

別の案件を探す
相談0円 居抜きで売却するなら、早めのご相談がおすすめです! 詳しく見る