受付時間:平日9時~17時
売却マイページ
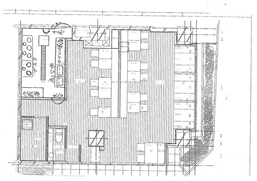
譲渡No.3263

中央区の韓国料理の居抜き売却物件の案件情報 重飲食対応可能の好立地譲渡情報になります!

案件概要

最寄り駅

人形町 (東京メトロ日比谷線)
徒歩2

現賃料 / 坪単価

- / 22,379

面積 坪(㎡)

23.46坪77.55m2

希望譲渡額

315万円

前業態

韓国料理

募集終了しました

案件詳細情報

所在地

東京23区 中央区

最寄り駅

人形町 (東京メトロ日比谷線) 徒歩2分

人形町 (都営浅草線) 徒歩2分

現賃料 / 坪単価

- / 22,379円

階数 / 建物

地上1階 / 地上10階建

面積 坪(㎡)

23.46坪77.55m2

構造

鉄筋コンクリート造

保証金・敷金

-

契約期間

2年

礼金

-

希望譲渡額

315万円

共益費 / 管理費

-

償却

-

更新料

-

情報公開日(更新日)

2012-03-22

現テナントの基本情報

業態

韓国料理

営業年数

-

営業時間

-

席数

-

コメント

-

この案件の取り扱い会社

募集終了しました

別の案件を探す
相談0円 居抜きで売却するなら、早めのご相談がおすすめです! 詳しく見る