受付時間:平日9時~17時
売却マイページ
譲渡No.9732

新宿区の海鮮丼の居抜き売却物件の案件情報 下井草駅徒歩2分!テイクアウト専門店居抜き物件!

案件概要

最寄り駅

下井草 (西武新宿線)
徒歩2

現賃料 / 坪単価

- / 14,143

面積 坪(㎡)

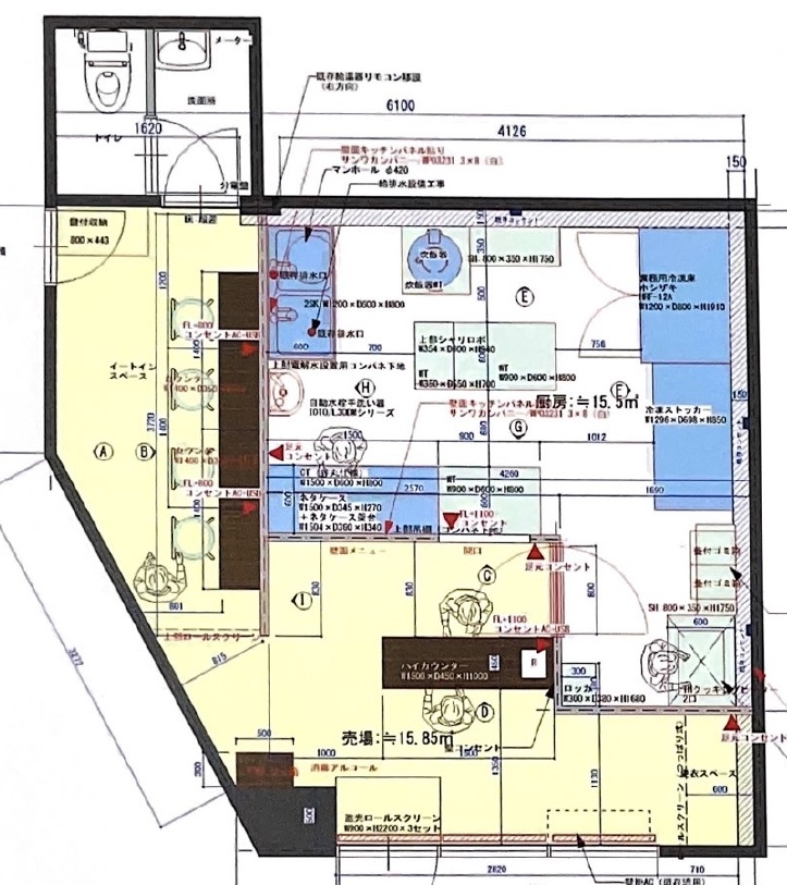
10.5坪34.71m2

希望譲渡額

75万円

前業態

海鮮丼

募集終了しました

案件詳細情報

所在地

東京23区 新宿区

最寄り駅

下井草 (西武新宿線) 徒歩2分

現賃料 / 坪単価

- / 14,143円

階数 / 建物

地上1階 / 地上2階建

面積 坪(㎡)

10.5坪34.71m2

構造

RC造

保証金・敷金

-

契約期間

普通2年

礼金

-

希望譲渡額

75万円

共益費 / 管理費

-

償却

-

更新料

-

情報公開日(更新日)

2023-05-16

売却テナントの基本情報

業態

海鮮丼

営業年数

-

営業時間

-

席数

-

コメント

-

この案件の取り扱い会社

募集終了しました

別の案件を探す
相談0円 居抜きで売却するなら、早めのご相談がおすすめです! 詳しく見る