受付時間:平日9時~17時
売却マイページ
譲渡No.9252

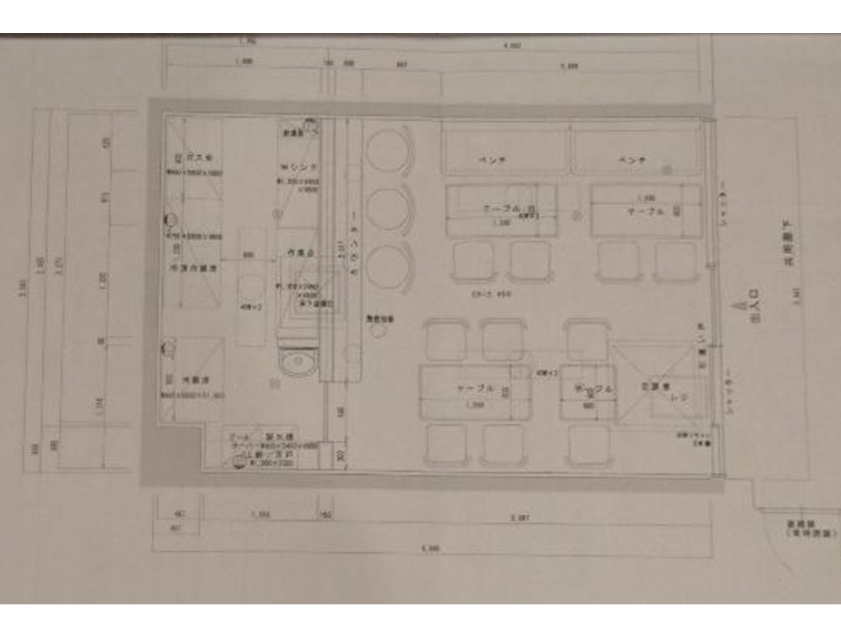
新宿区の韓国料理の居抜き売却物件の案件情報 信濃町駅徒歩2分!韓国料理店居抜き物件!!

案件概要

最寄り駅

信濃町 (JR中央線)
徒歩2

現賃料 / 坪単価

- / 14,650

面積 坪(㎡)

8坪26.4m2

希望譲渡額

60万円

前業態

韓国料理

募集終了しました

案件詳細情報

所在地

東京23区 新宿区

最寄り駅

信濃町 (JR中央線) 徒歩2分

現賃料 / 坪単価

- / 14,650円

階数 / 建物

地下1階 / 地上6地下1階建

面積 坪(㎡)

8坪26.4m2

構造

RC造

保証金・敷金

-

契約期間

5年

礼金

-

希望譲渡額

60万円

共益費 / 管理費

-

償却

-

更新料

-

情報公開日(更新日)

2022-09-29

売却テナントの基本情報

業態

韓国料理

営業年数

-

営業時間

-

席数

-

コメント

-

この案件の取り扱い会社

募集終了しました

別の案件を探す
相談0円 居抜きで売却するなら、早めのご相談がおすすめです! 詳しく見る