受付時間:平日9時~17時
売却マイページ
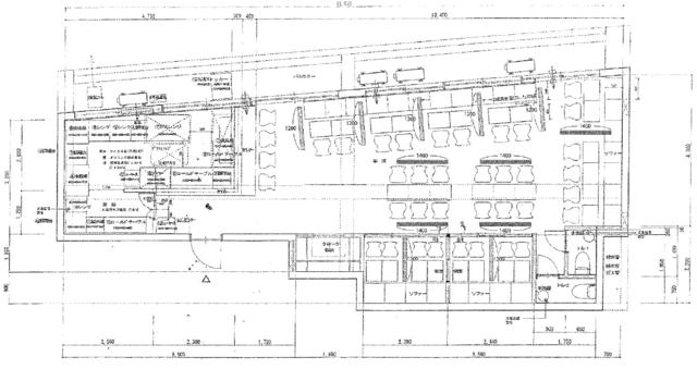
譲渡No.8777

新宿区の焼鳥の居抜き売却物件の案件情報 西武新宿駅近く、焼き鳥店居抜き!

案件概要

最寄り駅

西武新宿 (西武新宿線)
徒歩5

現賃料 / 坪単価

- / 17,600

面積 坪(㎡)

29.2坪96.53m2

希望譲渡額

500万円

前業態

焼鳥

募集終了しました

案件詳細情報

所在地

東京23区 新宿区

最寄り駅

西武新宿 (西武新宿線) 徒歩5分

新宿 (東京メトロ丸ノ内線) 徒歩5分

現賃料 / 坪単価

- / 17,600円

階数 / 建物

地上5階 / 地上5階建

面積 坪(㎡)

29.2坪96.53m2

構造

RC造

保証金・敷金

-

契約期間

定借7年

礼金

-

希望譲渡額

500万円

共益費 / 管理費

-

償却

-

更新料

-

情報公開日(更新日)

2021-02-28

現テナントの基本情報

業態

焼鳥

営業年数

-

営業時間

-

席数

-

コメント

-

この案件の取り扱い会社

募集終了しました

別の案件を探す
相談0円 居抜きで売却するなら、早めのご相談がおすすめです! 詳しく見る