受付時間:平日9時~17時
売却マイページ
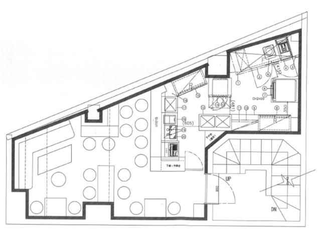
譲渡No.8504

新宿区のダイニングバーの居抜き売却物件の案件情報 各線 飯田橋駅すぐ!B1階~B2階、ダイニングバー居抜き!

案件概要

最寄り駅

飯田橋 (東京メトロ南北線)
徒歩1

現賃料 / 坪単価

- / 17,200

面積 坪(㎡)

16.31坪53.91m2

希望譲渡額

200万円

前業態

ダイニングバー

募集終了しました

案件詳細情報

所在地

東京23区 新宿区

最寄り駅

飯田橋 (東京メトロ南北線) 徒歩1分

飯田橋 (都営大江戸線) 徒歩1分

現賃料 / 坪単価

- / 17,200円

階数 / 建物

地下2-地下1階 / 地上6地下2階建

面積 坪(㎡)

16.31坪53.91m2

構造

SRC造

保証金・敷金

-

契約期間

定期建物賃貸借5年

礼金

-

希望譲渡額

200万円

共益費 / 管理費

-

償却

-

更新料

-

情報公開日(更新日)

2020-12-07

現テナントの基本情報

業態

ダイニングバー

営業年数

-

営業時間

-

席数

-

コメント

-

この案件の取り扱い会社

募集終了しました

別の案件を探す
相談0円 居抜きで売却するなら、早めのご相談がおすすめです! 詳しく見る