受付時間:平日9時~17時
売却マイページ
譲渡No.7640

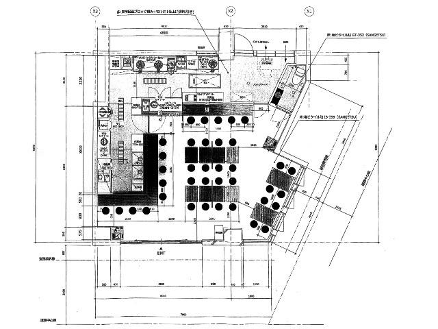
新宿区のステーキの居抜き売却物件の案件情報 高田馬場駅徒歩2分。さかえ通り沿いの角地、路面居抜き物件!

案件概要

最寄り駅

高田馬場 (JR山手線)
徒歩2

現賃料 / 坪単価

- / 49,815

面積 坪(㎡)

21.68坪71.67m2

希望譲渡額

相談

前業態

ステーキ

募集終了しました

案件詳細情報

所在地

東京23区 新宿区

最寄り駅

高田馬場 (JR山手線) 徒歩2分

高田馬場 (東京メトロ東西線) 徒歩2分

現賃料 / 坪単価

- / 49,815円

階数 / 建物

地上1階 /

面積 坪(㎡)

21.68坪71.67m2

構造

鉄筋コンクリート造

保証金・敷金

-

契約期間

3年

礼金

-

希望譲渡額

相談

共益費 / 管理費

-

償却

-

更新料

-

情報公開日(更新日)

2019-02-04

現テナントの基本情報

業態

ステーキ

営業年数

-

営業時間

-

席数

-

コメント

-

この案件の取り扱い会社

募集終了しました

別の案件を探す
相談0円 居抜きで売却するなら、早めのご相談がおすすめです! 詳しく見る