受付時間:平日9時~17時
売却マイページ
譲渡No.7331

新宿区のステーキの居抜き売却物件の案件情報 新宿駅、小滝橋通り沿いの1階路面店舗!

案件概要

最寄り駅

新宿 (JR山手線)
徒歩5

現賃料 / 坪単価

- / 64,846

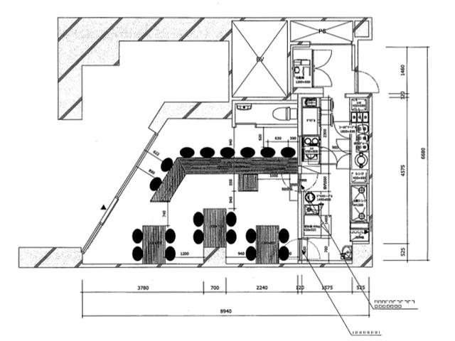
面積 坪(㎡)

14.04坪46.44m2

希望譲渡額

216万円

前業態

ステーキ

募集終了しました

案件詳細情報

所在地

東京23区 新宿区

最寄り駅

新宿 (JR山手線) 徒歩5分

西武新宿 (西武新宿線) 徒歩5分

現賃料 / 坪単価

- / 64,846円

階数 / 建物

地上1階 /

面積 坪(㎡)

14.04坪46.44m2

構造

鉄骨造

保証金・敷金

-

契約期間

定借9年

礼金

-

希望譲渡額

216万円

共益費 / 管理費

-

償却

-

更新料

-

情報公開日(更新日)

2018-09-20

現テナントの基本情報

業態

ステーキ

営業年数

-

営業時間

-

席数

-

コメント

-

この案件の取り扱い会社

募集終了しました

別の案件を探す
相談0円 居抜きで売却するなら、早めのご相談がおすすめです! 詳しく見る