受付時間:平日9時~17時
売却マイページ
譲渡No.7020

杉並区の焼肉の居抜き売却物件の案件情報 丸の内線新高円寺駅駅近。焼肉店居抜き。

案件概要

最寄り駅

新高円寺 (東京メトロ丸ノ内線)
徒歩2

現賃料 / 坪単価

- / 14,960

面積 坪(㎡)

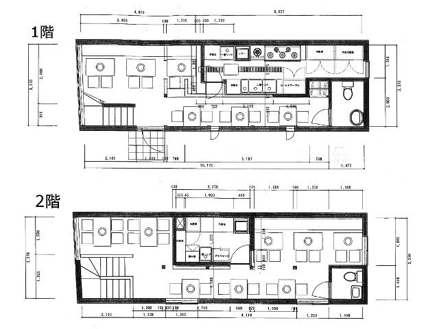
25.99坪85.94m2

希望譲渡額

216万円

前業態

焼肉

募集終了しました

案件詳細情報

所在地

東京23区 杉並区

最寄り駅

新高円寺 (東京メトロ丸ノ内線) 徒歩2分

現賃料 / 坪単価

- / 14,960円

階数 / 建物

地上1-地上2階 / 地上2階建

面積 坪(㎡)

25.99坪85.94m2

構造

木造

保証金・敷金

-

契約期間

2年

礼金

-

希望譲渡額

216万円

共益費 / 管理費

-

償却

-

更新料

-

情報公開日(更新日)

2018-03-13

現テナントの基本情報

業態

焼肉

営業年数

-

営業時間

-

席数

-

コメント

-

この案件の取り扱い会社

募集終了しました

別の案件を探す
相談0円 居抜きで売却するなら、早めのご相談がおすすめです! 詳しく見る