受付時間:平日9時~17時
売却マイページ
譲渡No.6945

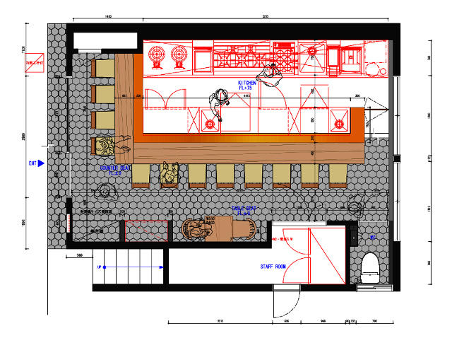
新宿区の居酒屋の居抜き売却物件の案件情報 高田馬場駅より徒歩3分。さかえ通り沿いの1階路面店舗、そば居酒屋居抜きの美内装物件です。

案件概要

最寄り駅

高田馬場 (JR山手線)
徒歩3

現賃料 / 坪単価

- / 35,749

面積 坪(㎡)

11.48坪37.95m2

希望譲渡額

378万円

前業態

居酒屋

募集終了しました

案件詳細情報

所在地

東京23区 新宿区

最寄り駅

高田馬場 (JR山手線) 徒歩3分

高田馬場 (東京メトロ東西線) 徒歩3分

現賃料 / 坪単価

- / 35,749円

階数 / 建物

地上1階 /

面積 坪(㎡)

11.48坪37.95m2

構造

木造

保証金・敷金

-

契約期間

3年

礼金

-

希望譲渡額

378万円

共益費 / 管理費

-

償却

-

更新料

-

情報公開日(更新日)

2018-02-06

売却テナントの基本情報

業態

居酒屋

営業年数

-

営業時間

-

席数

-

コメント

-

この案件の取り扱い会社

募集終了しました

別の案件を探す
相談0円 居抜きで売却するなら、早めのご相談がおすすめです! 詳しく見る