受付時間:平日9時~17時
売却マイページ
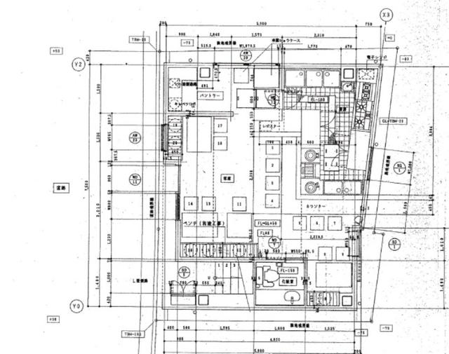
譲渡No.6708

杉並区のラーメンの居抜き売却物件の案件情報 芦花公園から徒歩2分! 駅至近のラーメン店1階路面店舗の居抜き物件です!

案件概要

最寄り駅

芦花公園 (京王本線)
徒歩2

現賃料 / 坪単価

- / 23,352

面積 坪(㎡)

12.487坪41.28m2

希望譲渡額

0万円

前業態

ラーメン

募集終了しました

案件詳細情報

所在地

東京23区 杉並区

最寄り駅

芦花公園 (京王本線) 徒歩2分

現賃料 / 坪単価

- / 23,352円

階数 / 建物

地上1階 / 地上4階建

面積 坪(㎡)

12.487坪41.28m2

構造

鉄骨造

保証金・敷金

-

契約期間

3年

礼金

-

希望譲渡額

0万円

共益費 / 管理費

-

償却

-

更新料

-

情報公開日(更新日)

2018-01-11

現テナントの基本情報

業態

ラーメン

営業年数

-

営業時間

-

席数

-

コメント

-

この案件の取り扱い会社

募集終了しました

別の案件を探す
相談0円 居抜きで売却するなら、早めのご相談がおすすめです! 詳しく見る