受付時間:平日9時~17時
売却マイページ
譲渡No.6384

新宿区のしゃぶしゃぶの居抜き売却物件の案件情報 高田馬場駅至近!さかえ通り沿い居抜き物件

案件概要

最寄り駅

高田馬場 (JR山手線)
徒歩2

現賃料 / 坪単価

- / 21,797

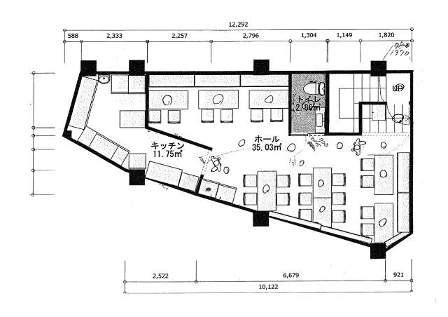
面積 坪(㎡)

17.54坪58.0m2

希望譲渡額

162万円

前業態

しゃぶしゃぶ

募集終了しました

案件詳細情報

所在地

東京23区 新宿区

最寄り駅

高田馬場 (JR山手線) 徒歩2分

高田馬場 (西武新宿線) 徒歩2分

現賃料 / 坪単価

- / 21,797円

階数 / 建物

地下1階 /

面積 坪(㎡)

17.54坪58.0m2

構造

鉄筋鉄骨コンクリート造

保証金・敷金

-

契約期間

3年

礼金

-

希望譲渡額

162万円

共益費 / 管理費

-

償却

-

更新料

-

情報公開日(更新日)

2017-01-05

現テナントの基本情報

業態

しゃぶしゃぶ

営業年数

-

営業時間

-

席数

-

コメント

-

この案件の取り扱い会社

募集終了しました

別の案件を探す
相談0円 居抜きで売却するなら、早めのご相談がおすすめです! 詳しく見る