受付時間:平日9時~17時
売却マイページ
譲渡No.6270

杉並区の鉄板焼きの居抜き売却物件の案件情報 阿佐ヶ谷駅至近の飲み屋街!鉄板焼きの居抜き店舗

案件概要

最寄り駅

阿佐ヶ谷 (JR中央線)
徒歩2

現賃料 / 坪単価

- / 22,766

面積 坪(㎡)

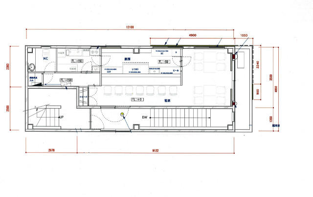
11.86坪39.2m2

希望譲渡額

162万円

前業態

鉄板焼き

募集終了しました

案件詳細情報

所在地

東京23区 杉並区

最寄り駅

阿佐ヶ谷 (JR中央線) 徒歩2分

阿佐ヶ谷 (JR総武線) 徒歩2分

現賃料 / 坪単価

- / 22,766円

階数 / 建物

地上2階 /

面積 坪(㎡)

11.86坪39.2m2

構造

鉄骨造

保証金・敷金

-

契約期間

3年

礼金

-

希望譲渡額

162万円

共益費 / 管理費

-

償却

-

更新料

-

情報公開日(更新日)

2016-10-18

現テナントの基本情報

業態

鉄板焼き

営業年数

-

営業時間

-

席数

-

コメント

-

この案件の取り扱い会社

募集終了しました

別の案件を探す
相談0円 居抜きで売却するなら、早めのご相談がおすすめです! 詳しく見る