受付時間:平日9時~17時
売却マイページ
譲渡No.5667

新宿区のカフェの居抜き売却物件の案件情報 丸の内線西新宿駅から徒歩5分!1階路面のカフェ居抜き店舗です!

案件概要

最寄り駅

西新宿 (東京メトロ丸ノ内線)
徒歩5

現賃料 / 坪単価

- / 22,704

面積 坪(㎡)

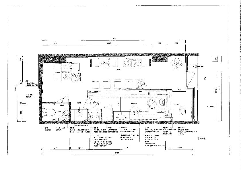
9.51坪31.45m2

希望譲渡額

200万円

前業態

カフェ

募集終了しました

案件詳細情報

所在地

東京23区 新宿区

最寄り駅

西新宿 (東京メトロ丸ノ内線) 徒歩5分

新宿 (JR山手線) 徒歩9分

現賃料 / 坪単価

- / 22,704円

階数 / 建物

地上1階 /

面積 坪(㎡)

9.51坪31.45m2

構造

鉄筋コンクリート造

保証金・敷金

-

契約期間

3年

礼金

-

希望譲渡額

200万円

共益費 / 管理費

-

償却

-

更新料

-

情報公開日(更新日)

2015-09-02

現テナントの基本情報

業態

カフェ

営業年数

-

営業時間

-

席数

-

コメント

-

この案件の取り扱い会社

募集終了しました

別の案件を探す
相談0円 居抜きで売却するなら、早めのご相談がおすすめです! 詳しく見る