受付時間:平日9時~17時
売却マイページ
譲渡No.4654

杉並区の定食屋の居抜き売却物件の案件情報 阿佐ヶ谷駅北口ロータリー面!業態制限なし

案件概要

最寄り駅

阿佐ヶ谷 (JR中央線)
徒歩1

現賃料 / 坪単価

- / 23,895

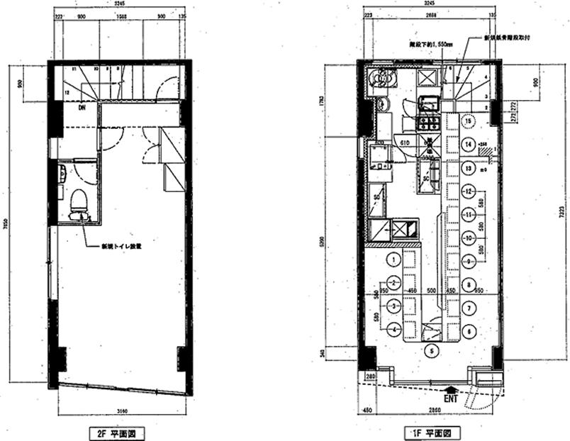
面積 坪(㎡)

25.11坪83.0m2

希望譲渡額

250万円

前業態

定食屋

募集終了しました

案件詳細情報

所在地

東京23区 杉並区

最寄り駅

阿佐ヶ谷 (JR中央線) 徒歩1分

現賃料 / 坪単価

- / 23,895円

階数 / 建物

地上1-地上3階 /

面積 坪(㎡)

25.11坪83.0m2

構造

鉄骨造

保証金・敷金

-

契約期間

3年

礼金

-

希望譲渡額

250万円

共益費 / 管理費

-

償却

-

更新料

-

情報公開日(更新日)

2014-01-17

現テナントの基本情報

業態

定食屋

営業年数

-

営業時間

-

席数

-

コメント

-

この案件の取り扱い会社

募集終了しました

別の案件を探す
相談0円 居抜きで売却するなら、早めのご相談がおすすめです! 詳しく見る