受付時間:平日9時~17時
売却マイページ
譲渡No.4270

新宿区の焼肉の居抜き売却物件の案件情報 駅近。視認性の高い1F店舗!同業態であれば即営業可能です!!

案件概要

最寄り駅

新大久保 (JR山手線)
徒歩1

現賃料 / 坪単価

- / 28,350

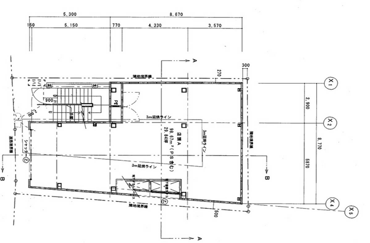
面積 坪(㎡)

30.15坪99.67m2

希望譲渡額

300万円

前業態

焼肉

募集終了しました

案件詳細情報

所在地

東京23区 新宿区

最寄り駅

新大久保 (JR山手線) 徒歩1分

現賃料 / 坪単価

- / 28,350円

階数 / 建物

地上1階 / 地上3地下1階建

面積 坪(㎡)

30.15坪99.67m2

構造

鉄骨鉄筋コンクリート造

保証金・敷金

-

契約期間

3年

礼金

-

希望譲渡額

300万円

共益費 / 管理費

-

償却

-

更新料

-

情報公開日(更新日)

2013-07-31

現テナントの基本情報

業態

焼肉

営業年数

-

営業時間

-

席数

-

コメント

-

この案件の取り扱い会社

募集終了しました

別の案件を探す
相談0円 居抜きで売却するなら、早めのご相談がおすすめです! 詳しく見る