受付時間:平日9時~17時
売却マイページ
譲渡No.3692

新宿区のカフェの居抜き売却物件の案件情報 新宿御苑すぐの立地!大変美装な居抜き案件になります。

案件概要

最寄り駅

新宿三丁目 (東京メトロ丸ノ内線)
徒歩3

現賃料 / 坪単価

- / 9,112

面積 坪(㎡)

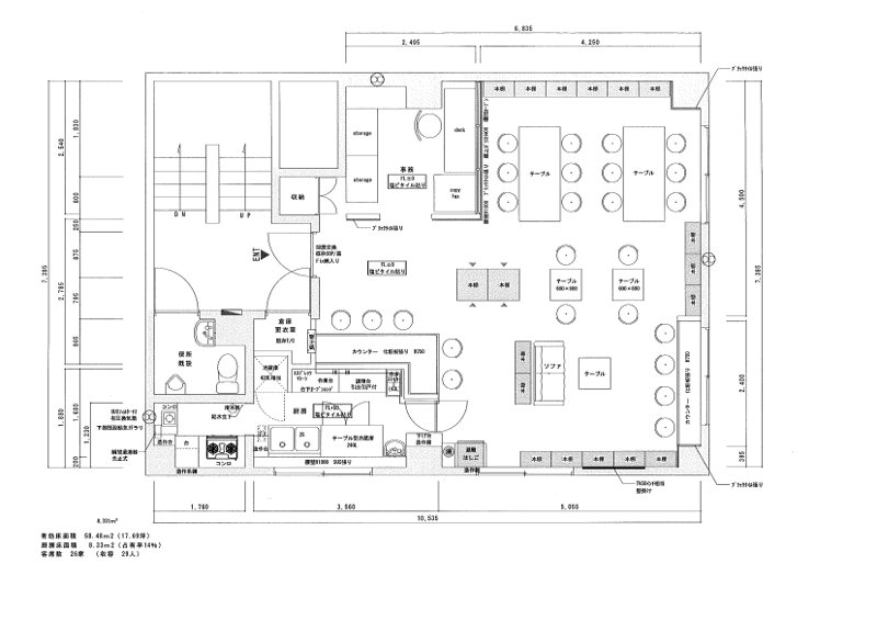
24.2坪80.0m2

希望譲渡額

180万円

前業態

カフェ

募集終了しました

案件詳細情報

所在地

東京23区 新宿区

最寄り駅

新宿三丁目 (東京メトロ丸ノ内線) 徒歩3分

現賃料 / 坪単価

- / 9,112円

階数 / 建物

地上2階 / 地上7地下1階建

面積 坪(㎡)

24.2坪80.0m2

構造

鉄筋コンクリート造

保証金・敷金

-

契約期間

2年

礼金

-

希望譲渡額

180万円

共益費 / 管理費

-

償却

-

更新料

-

情報公開日(更新日)

2012-10-31

現テナントの基本情報

業態

カフェ

営業年数

-

営業時間

-

席数

-

コメント

-

この案件の取り扱い会社

募集終了しました

別の案件を探す
相談0円 居抜きで売却するなら、早めのご相談がおすすめです! 詳しく見る