受付時間:平日9時~17時
売却マイページ
譲渡No.3651

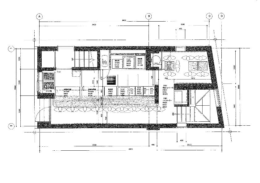
新宿区の蕎麦バルの居抜き売却物件の案件情報 大通り沿いで内装美装の18坪譲渡情報です。

案件概要

最寄り駅

高田馬場 (JR山手線)
徒歩2

現賃料 / 坪単価

- / 19,444

面積 坪(㎡)

18坪60.0m2

希望譲渡額

250万円

前業態

蕎麦バル

募集終了しました

案件詳細情報

所在地

東京23区 新宿区

最寄り駅

高田馬場 (JR山手線) 徒歩2分

高田馬場 (東京メトロ東西線) 徒歩2分

現賃料 / 坪単価

- / 19,444円

階数 / 建物

地上1-地下1階 / 地上3地下1階建

面積 坪(㎡)

18坪60.0m2

構造

保証金・敷金

-

契約期間

3年

礼金

-

希望譲渡額

250万円

共益費 / 管理費

-

償却

-

更新料

-

情報公開日(更新日)

2012-11-16

現テナントの基本情報

業態

蕎麦バル

営業年数

-

営業時間

-

席数

-

コメント

-

この案件の取り扱い会社

募集終了しました

別の案件を探す
相談0円 居抜きで売却するなら、早めのご相談がおすすめです! 詳しく見る