受付時間:平日9時~17時
売却マイページ
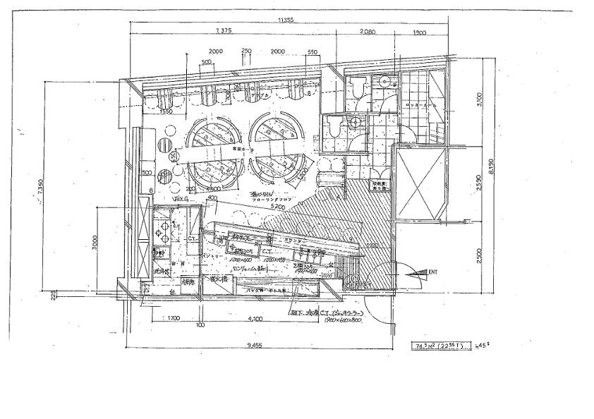
譲渡No.3297

新宿区のダイニングバーの居抜き売却物件の案件情報 飲食店が多数入居しているビルの譲渡情報になります。

案件概要

最寄り駅

新宿 (JR山手線)
徒歩6

現賃料 / 坪単価

- / 16,800

面積 坪(㎡)

28.9坪95.5m2

希望譲渡額

300万円

前業態

ダイニングバー

募集終了しました

案件詳細情報

所在地

東京23区 新宿区

最寄り駅

新宿 (JR山手線) 徒歩6分

西武新宿 (西武新宿線) 徒歩3分

現賃料 / 坪単価

- / 16,800円

階数 / 建物

地下1階 / 地上5地下1階建

面積 坪(㎡)

28.9坪95.5m2

構造

RC造

保証金・敷金

-

契約期間

3年

礼金

-

希望譲渡額

300万円

共益費 / 管理費

-

償却

-

更新料

-

情報公開日(更新日)

2012-04-10

現テナントの基本情報

業態

ダイニングバー

営業年数

-

営業時間

-

席数

-

コメント

-

この案件の取り扱い会社

募集終了しました

別の案件を探す
相談0円 居抜きで売却するなら、早めのご相談がおすすめです! 詳しく見る