受付時間:平日9時~17時
売却マイページ
譲渡No.10408

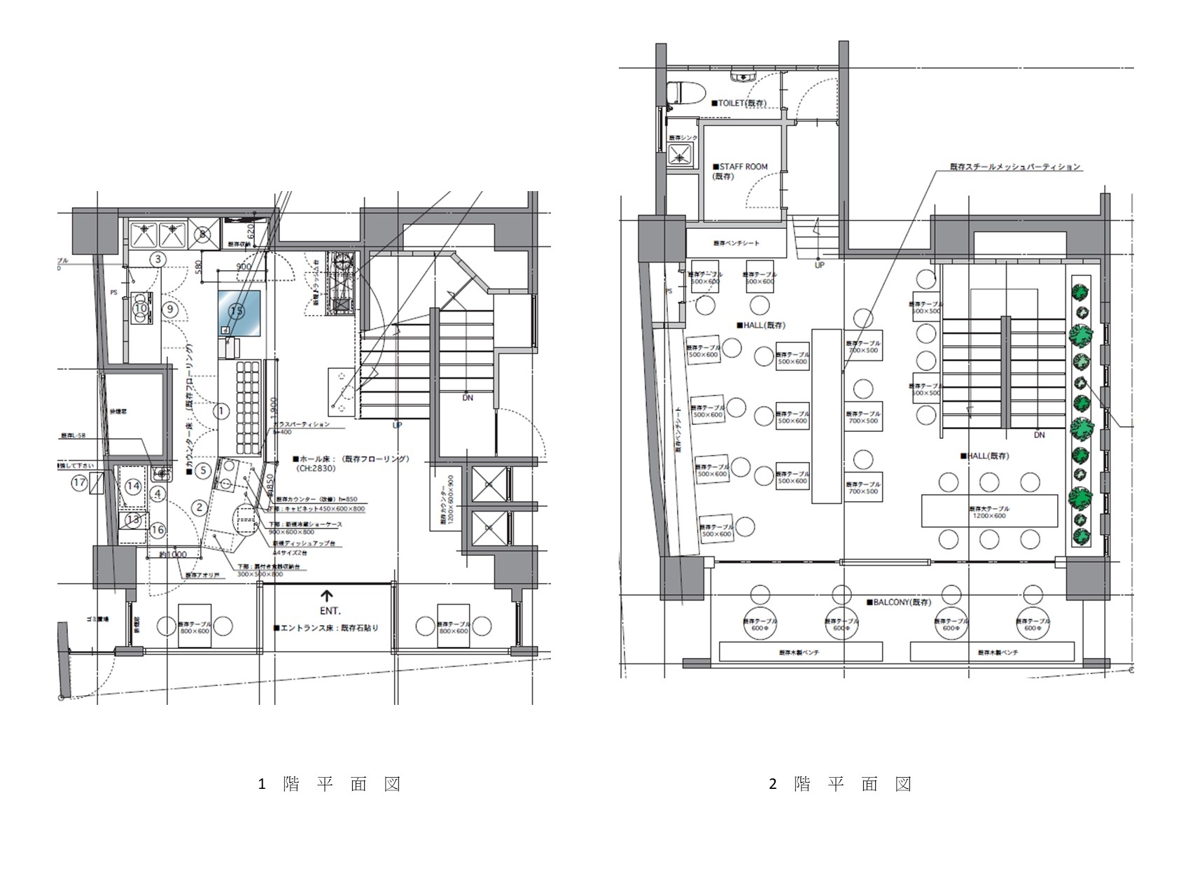
新宿区の専門店の居抜き売却物件の案件情報 早稲田駅徒歩5分!女性に人気の専門店居抜き物件!

案件概要

最寄り駅

早稲田 (東京メトロ東西線)
徒歩5

現賃料 / 坪単価

- / 13,199

面積 坪(㎡)

31.13坪102.91m2

希望譲渡額

300万円

前業態

専門店

募集終了しました

案件詳細情報

所在地

東京23区 新宿区

最寄り駅

早稲田 (東京メトロ東西線) 徒歩5分

現賃料 / 坪単価

- / 13,199円

階数 / 建物

地上1-地上2階 / 地上6地下1階建

面積 坪(㎡)

31.13坪102.91m2

構造

SRC造

保証金・敷金

-

契約期間

3年

礼金

-

希望譲渡額

300万円

共益費 / 管理費

-

償却

-

更新料

-

情報公開日(更新日)

2024-03-31

売却テナントの基本情報

業態

専門店

営業年数

-

営業時間

-

席数

-

コメント

-

この案件の取り扱い会社

募集終了しました

別の案件を探す
相談0円 居抜きで売却するなら、早めのご相談がおすすめです! 詳しく見る