受付時間:平日9時~17時
売却マイページ
譲渡No.9633

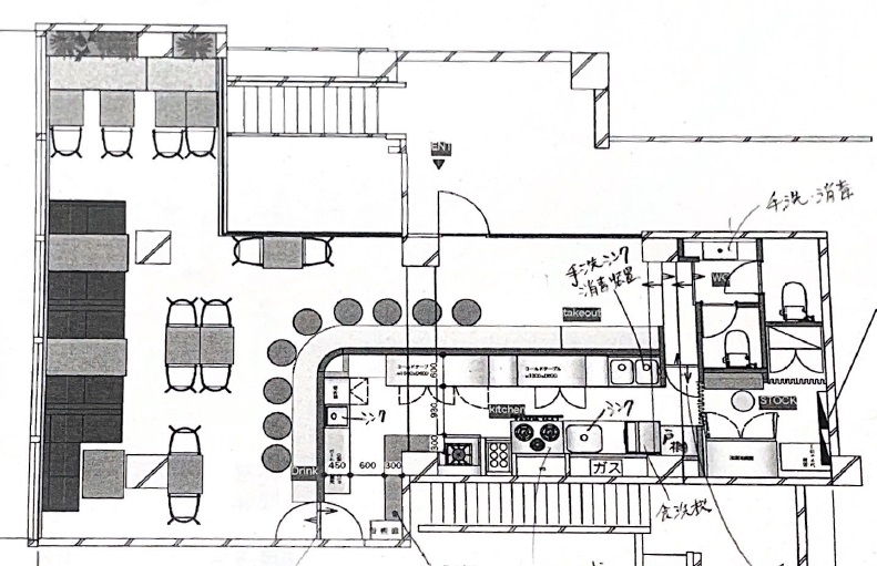
世田谷区のカフェの居抜き売却物件の案件情報 下北沢駅徒歩3分!カフェ居抜き物件!

案件概要

最寄り駅

下北沢 (小田急本線・小田原線)
徒歩3

現賃料 / 坪単価

- / 18,896

面積 坪(㎡)

24.92坪82.38m2

希望譲渡額

200万円

前業態

カフェ

募集終了しました

案件詳細情報

所在地

東京23区 世田谷区

最寄り駅

下北沢 (小田急本線・小田原線) 徒歩3分

下北沢 (京王井の頭線) 徒歩3分

現賃料 / 坪単価

- / 18,896円

階数 / 建物

地上2階 / 地上4階建

面積 坪(㎡)

24.92坪82.38m2

構造

RC造

保証金・敷金

-

契約期間

普通3年

礼金

-

希望譲渡額

200万円

共益費 / 管理費

-

償却

-

更新料

-

情報公開日(更新日)

2023-03-17

現テナントの基本情報

業態

カフェ

営業年数

-

営業時間

-

席数

-

コメント

-

この案件の取り扱い会社

募集終了しました

別の案件を探す
相談0円 居抜きで売却するなら、早めのご相談がおすすめです! 詳しく見る