受付時間:平日9時~17時
売却マイページ
譲渡No.9547

名古屋市中区のイタリアンの居抜き売却物件の案件情報 栄駅徒歩3分!イタリアンレストラン居抜き物件!

案件概要

最寄り駅

(名古屋市営東山線)
徒歩3

現賃料 / 坪単価

- / 13,762

面積 坪(㎡)

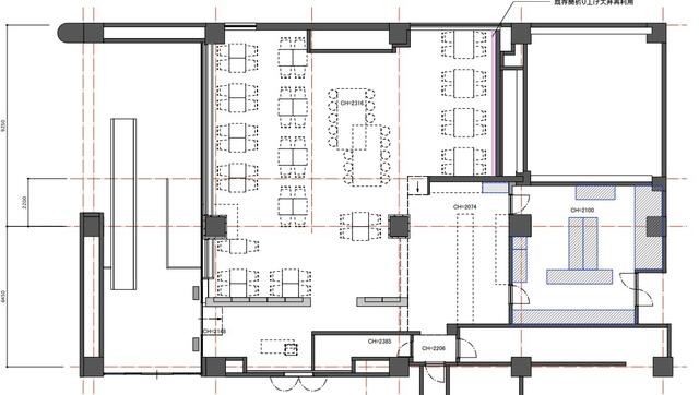
78.15坪258.35m2

希望譲渡額

200万円

前業態

イタリアン

募集終了しました

案件詳細情報

所在地

愛知県 名古屋市中区

最寄り駅

(名古屋市営東山線) 徒歩3分

(名古屋市営名城線) 徒歩3分

現賃料 / 坪単価

- / 13,762円

階数 / 建物

地上2階 / 地上15地下2階建

面積 坪(㎡)

78.15坪258.35m2

構造

SRC造

保証金・敷金

-

契約期間

礼金

-

希望譲渡額

200万円

共益費 / 管理費

-

償却

-

更新料

-

情報公開日(更新日)

2023-09-25

現テナントの基本情報

業態

イタリアン

営業年数

-

営業時間

-

席数

-

コメント

-

この案件の取り扱い会社

募集終了しました

別の案件を探す
相談0円 居抜きで売却するなら、早めのご相談がおすすめです! 詳しく見る